We will be closed on Bank Holiday Monday, reopening as usual on Tuesday 26th May.

La Sagesse, Newcastle Upon Tyne

£575,000
La Sagesse 16 Newcastle Upon Tyne NE2 3AF UK
La Sagesse, Newcastle Upon Tyne
La Sagesse 16 Newcastle Upon Tyne NE2 3AF UK
  • £575,000

Features

  • 2
  • 2
  • 2
  • Beautifully presented two bedroom apartment
  • Council tax band F
  • Ensuite plus separate bathroom WC
  • EPC Rating: C
  • Ground Rent £250pa
  • Leasehold - 155 years from 1 January 2015
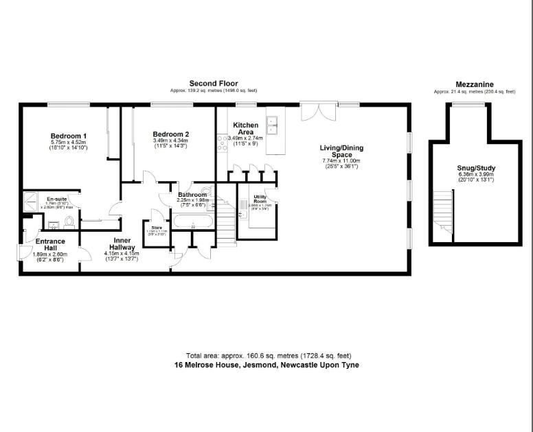
  • Mezzanine Floor
  • Service Charges £4712pa
  • Social open plan living

Description

This immaculate niche split level two-bedroom apartment is for sale in the exclusive La Sagesse development, offering social modern open-plan living.
Set within the highly regarded La Sagesse development, the property features a spacious open-plan kitchen, dining and lounge area with large windows and access to a a Juliette balcony, allowing plenty of natural light. A striking vaulted ceiling and mezzanine level add character and flexibility to the layout, providing an additional area that could be used for relaxing or working from home. The master bedroom benefits from its own en-suite shower room WC and there is a second bathroom WC serving the rest of the flat.

Jesmond is well known for its vibrant local amenities. Osborne Road and Acorn Road offer a range of cafés, bars, restaurants, and independent shops, while Jesmond Dene provides attractive green space for walking and outdoor leisure.

Public transport links are convenient, with Ilford Road and West Jesmond Metro stations both within easy reach, offering regular services into Newcastle city centre and further connections to the coast and Airport. Local bus routes also run along nearby main roads, providing alternatives for commuting and access around the city.

The flat’s combination of modern open-plan design, mezzanine feature and desirable Jesmond location makes it an appealing option for buyers seeking a well-presented two-bedroom home with strong access to local amenities and transport.

PRIMARY SERVICES SUPPLY

Electricity: Mains

Water: Mains

Sewerage: Mains
Heating: Electric underfloor

Broadband: Fibre

Mobile Signal Coverage Blackspot: No

Parking: One allocated space

MINING
The North East region is famous for its rich mining heritage and therefore it will be beneficial to conduct a mining search. Confirmation should be sought from a conveyancer as to its effect on the property, if any.

Downloads

Property Documents

Energy Performance Certificate
Brochure

Floor Plans

Floorplan_1

Overview

  • Fine Living Property, Residential, Sale
  • Property Type
  • 2
  • Bedrooms
  • 2
  • Bathrooms

Compare listings

Compare

Free Valuation

Our team of specialists will advise you on the real value of your property. Click here. You will be redirected to a third party website.

Previous Next
Close
Test Caption
Test Description goes like this

Register on our database

If you are looking to buy a property, register your details here.

We will send you properties that match your requirements as soon as they come to market. Direct to your inbox.

By submitting the data capture form, you acknowledge that your data will be processed by Rook Matthews Sayer for the purposes of providing the service and/or product you have requested. Full details of how we may process your data further can be found in our Privacy Notice on our website.

    Arrange a Viewing

    Simply fill in the form below.